你的浏览器已禁用javascript,请启用javascript,否则网页将非正常运行!
华体会app注册登录入口_华体会(中国)

COMPOSITION

学校食堂组成部分

售卖出餐区
售卖出餐区
就餐大厅
就餐大厅
厨房
厨房

学校食堂由这几个部分组成:厨房、售卖出餐区、就餐大厅等。其中,就餐大厅占用大部分建筑面积,其次是厨房。成都贵族学校——成都新川外国语学校食堂一、二、三层为学生食堂区,四层为教职工食堂区。

REGIONALDIVISION

学校食堂区域划分

随着我国教育事业的迅猛发展,国家持续加大教育经费的投入,与之相配套的教育基建设施也在大规模建设之中。各地方政府、教育局、学校纷纷建造大型配套的学校食堂。新建的食堂在就餐模式、经营模式、建筑规模和使用功能等方面均与传统的学校食堂有了较大的变化。
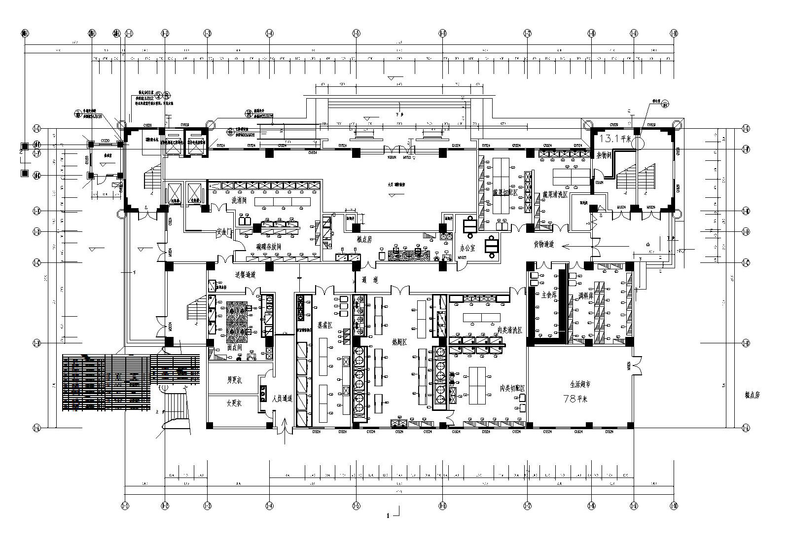
不同的就餐、经营模式有不同的建筑空间与之相适应,伴随着就餐、经营模式的变化,如今,学校食堂大致分为三分式:厨房操作区、备餐售卖区及就餐区。且各功能空间的划分更加明确固定,为我国学校食堂较为常见的模式。

学校食堂区域划分平面图

RegionalDivision

学校食堂特殊性

非盈利性

经营上的非赢利性。不以赢利为目的,加上国家给予的优惠政策,餐品价格相对较低

大规模配送性

大规模的配送性。对于就餐者众多的学校食堂,为保证食品安全,主要食材应由供应商统一定点配送。

单一性

就餐者的单一性。学校食堂的就餐者为本校师生,人数较稳定。

季节性

经营上的非赢利性。不以赢利为目的,加上国家给予的优惠政策,餐品价格相对较 低

Design considerations

优佰特对学校设计的考量

高校厨房工程应注意的事项

高校食堂不以盈利为目的,饭菜价格相对较低。在此前提下,应降低建筑物的造价和使用 过程中的运营成本。高校食堂有别于中小学食堂,虽同属学校食堂,但具备一定的特殊性。 由于高校食堂采购次数多并拥有大容量储备仓库,可以在食堂中减少冷库及库房的建筑面积。 又因高校厨房工程项目油烟较重,食品监管部门对学校的食品质量监管会严格把控,所以, 高校食堂对安全的抽油烟系统和绿色环保的厨房设备有更高要求,而优伯特商用厨具能最 大限度的满足高校食堂的需求

Implementation process

工程实施流程

Why did you choose us?

为什么选择我们

  • 丰富的厨房设计经验
  • 专业化施工队伍
  • 实力雄厚品质保障
丰富的厨房设计经验
丰富的厨房设计经验
丰富的厨房设计经验
丰富的厨房设计经验
专业化施工队伍
专业化施工队伍
专业化施工队伍
专业化施工队伍
实力雄厚品质保障
实力雄厚品质保障
实力雄厚品质保障
实力雄厚品质保障

Service case

工程服务案例

成都七中
成都七中
西南民族大学
西南民族大学
西南航空学院
西南航空学院
四川大学
四川大学
攀枝花米易二小
攀枝花米易二小
攀枝花九中食堂
攀枝花九中食堂
贵州遵义新蓝外国语学校
贵州遵义新蓝外国语学校
成都新川外国语学校
成都新川外国语学校

About Ubat

关于优佰特