隆昌厨房设备公司告诉你商用厨房设计的组成
发布人: 四川优佰特厨房设备公司 发布时间:2023.06.28
商用厨房也和家用厨房一样,在施工之前,需要先绘制厨房设计图。而由于商用厨房的规模一般较大,且厨房设备的数量和种类较多,使用的能源也更多元化,因此,商用厨房设计就和家用的不同。那么,商用厨房设计由那几部分构成呢?最近不少隆昌的朋友就在咨询这个问题。虽然我们不是隆昌厨房设备公司,但是,作为长期在隆昌销售学校厨房设备的公司,现在就和大家分享相关的知识。
作为专业的商用厨房全套设备生产厂家,我们根据多年的商厨设计经验,总结了商用厨房设计的几大构成部分,具体如下:
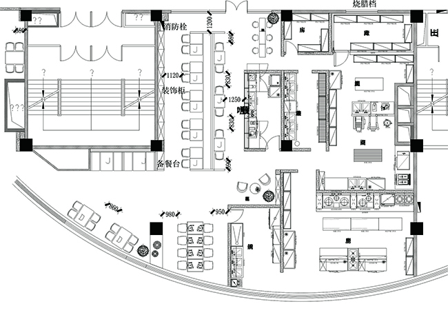
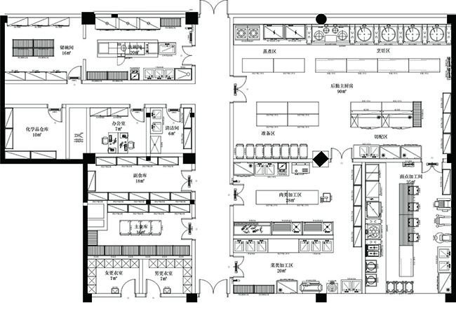
1.厨房设备布局:规划整体厨房的功能流程,厨房设备类型、数量、尺寸。
2.厨房土建隔断图:厨房隔断的尺寸和位置,门窗的尺寸和位置,厨房使用的转换窗的高度和位置,构造细节等。

3.厨房设备供电点位图:所有设备的用电量,电位的安装高度、供电点的布线尺寸等。
4.厨房设计供水点位图:所有用水设备的位置,包括冷水和热水、水的安装高度、供水的管径等。
5.厨房设备排水点位图:所有需要设备的位置,排水管径等。

6.厨房设备通风排烟图:所有排烟设备的排烟罩位置、排烟管径大小、排烟管道走向、厨房风机净化器的布置位置等。
7.气点位图等:厨房燃气设备的供气。
以上是我们整理的商用厨房设计的组成部分的相关知识,希望对大家有所帮助。
上一个产品:四川达州厨房设备生产厂家建议你不要买便宜...
下一个产品:绵竹厨房设备厂家告诉你绞肉机怎么卖
分享这个产品







